Leave a Message

By providing your contact information to Eleete Real Estate, your personal information will be processed in accordance with Eleete Real Estate's Privacy Policy. By checking the box(es) below, you consent to receive communications regarding your real estate inquiries and related marketing and promotional updates in the manner selected by you. For SMS text messages, message frequency varies. Message and data rates may apply. You may opt out of receiving further communications from Eleete Real Estate at any time. To opt out of receiving SMS text messages, reply STOP to unsubscribe.

Thank you for your message. We will be in touch with you shortly.

Explore Our Properties

Property Description

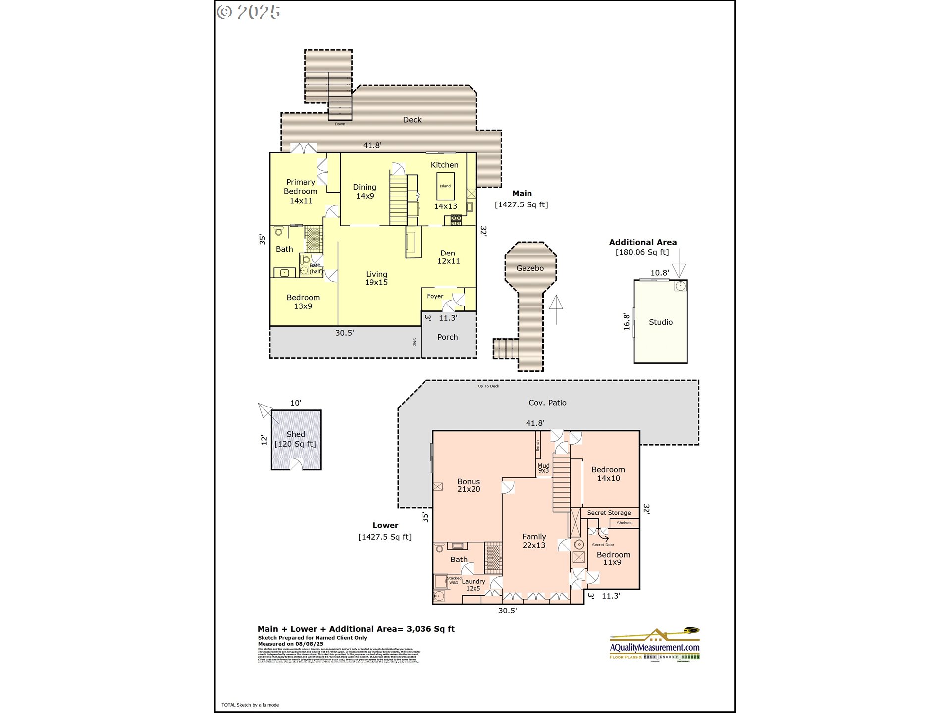
This charming Daylight Ranch sits on a generous 0.57 acre lot with amazing views in sought-after Bonny Slope. The gorgeous, park-like setting is private and offers multiple outdoor areas for entertaining including the spacious deck, covered patio, gazebo and expansive lawns. Beautiful hardwood floors and substantial millwork showcase the era of the home. A large picture window and fireplace wall anchors the Living Room. The recently remodeled Kitchen features soft close cabinetry, Kucht Professional built-in gas range and range hood, farm sink, French door refrigerator and slab quartz counters with custom tile tilework. French doors lead to the deck off the Primary Suite. The lower level offers two additional bedrooms, a spacious Family Room and oversized Bonus Room. 180 SF Detached Studio maximizes flex space for home office, gym, etc. Lower lot has potential to subdivide. RV / Boat Parking + Storage Shed. Convenient to shopping, dining, hi-tech corridor. Top-rated schools: Bonny Slope Elementary / Tumwater Middle / Sunset High. WA County taxes. Incredible!

Overview

Property Status
Sold
Lot Size
0.57 Acres
MLS ID
406146842
Property Type
Residential
Year Built
1964

Features & Amenities

Total Area
2,854 Sq.Ft.
Neighborhood
Cedar Mill
Architecture Styles
Stories 2, Daylight Ranch
View Description
Trees Woods
Stories
2
Water Source
Public Water
Roof
Composition
Lot Features
Private
Parking
Driveway, RVAccess Parking
Heat Type
Forced Air
Air Conditioning
Central Air
Fireplace
Gas
Appliances
Builtin Range, Convection Oven, Dishwasher, Disposal, Free Standing Refrigerator, Gas Appliances, Island, Quartz, Range Hood, Stainless Steel Appliance, Tile
Other Interior Features
Concrete Floor, Hardwood Floors, Luxury Vinyl Plank, Quartz, Reclaimed Material, Tile Floor, Washer Dryer
Sewer
Public Sewer
Substructure
Slab
Disability Features
Main Floor Bedroom Bath
Security Features
Security Lights
Other Exterior Features
Covered Deck, Covered Patio, Deck, Gazebo, Patio, Porch, Raised Beds, RVBoat Storage, Security Lights, Tool Shed, Yard
Elementary School
Bonny Slope
Middle School
Tumwater
High School
Sunset
Sales Price
$780,000
Real Estate Tax
$6,823/yr

Downloads

2010 NW 119TH AVE

Schedule a Tour

We would love to help you see this beautiful home! As a full-service brokerage, we can help you tour. Please submit an offer, and answer questions about the buying process.

Thank you

for your interest in 2010 NW 119TH AVE, Portland, OR 97229

2010 NW 119TH AVE
Navigate
Cedar Mill

Explore Cedar Mill

Quiet, green and affluent in a low-key way, this community boasts larger than average sized lots and is Highway 26 adjacent.

read more
2010 NW 119TH AVE
explore in 3d

Properties

  • 3402 NW 117TH PL For Sale

    $1,195,000

    3402 NW 117TH PL, Portland, OR 97229

    • 5 Beds
    • 4 Baths
    • 4,043 Sq.Ft.
  • 10191 NW BARNHART LN For Sale

    $929,000

    10191 NW BARNHART LN, Portland, OR 97229

    • 4 Beds
    • 3 Baths
    • 2,661 Sq.Ft.
  • 10626 NW GLENMORE WAY Pending

    $875,000

    10626 NW GLENMORE WAY, Portland, OR 97229

    • 4 Beds
    • 4 Baths
    • 3,237 Sq.Ft.
  • 1141 NW 98th AVE For Sale

    $865,000

    1141 NW 98th AVE, Portland, OR 97229

    • 4 Beds
    • 3 Baths
    • 2,718 Sq.Ft.
  • 3527 NW LANSBROOK TER For Sale

    $809,000

    3527 NW LANSBROOK TER, Portland, OR 97229

    • 4 Beds
    • 3 Baths
    • 3,269 Sq.Ft.
  • 12295 NW CORNELL RD For Sale

    $575,000

    12295 NW CORNELL RD, Portland, OR 97229

View All Properties

Follow Us On Instagram